Leírás
Modern technológiánk lényege a rugalmasság: attól függően.hogy a helyszín és az Ön igényei mit kívánnak.vállaljuk otthona hagyományosabb helyszíni építését.vagy a műhelyünkben gyártott modulok szállítását és telepítését.Ez utóbbi villámgyors megoldást kínál akár a legtávolabbi településekre is.
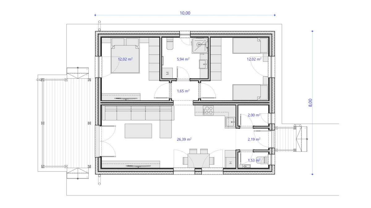
Ez a 63 nm-es.kiváló elosztású otthon remek példa a praktikumra: a tágas és világos nappali-étkező-konyha mellett két hálószoba.komfortos fürdő.különálló WC és egy háztartási helyiség/kamra is helyet kapott.Ideális.komfortos életteret biztosít első otthont keresőknek.egygyermekes családoknak vagy felnőtt gyermekes szülőknek.
| Hasznos terület - m2 | |
|---|---|
| Fürdőszobák száma - db | |
| Garázs férőhely - db | |
| Építési mód | moduláris |
| nappali-étkező-konyha | |
| szoba1 nm | |
| szoba2 nm | |
| fürdőszoba | |
| közlekedő nm | |
| wc | |
| előtér | |
| kamra |
Kínálatunk egyik legpraktikusabb darabja ez a 63 nm-es.2 hálószobás otthon.melynek átgondolt alaprajza külön WC-t és háztartási helyiséget/kamrát is magába foglal.Mint sok más tervünket.ezt a modellt is az Ön igényei szerint építjük fel: választhatja a hagyományos helyszíni kivitelezést.vagy akár a gyors.szállítható megoldást.









