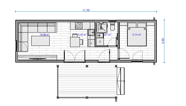
Leírás
Egyedülállóknak.vagy azon szépkorúaknak.akik számára nehéz a lépcsózés.így társasházi lakásukat lecserélnék egy komfortosabb megoldásra.Gyors kivitelezés.költséghatékony megoldás.könnyen megközelíthető.szállítható.Nappali.étkező és konyha egy légtérben.világos és jó szellőzésű.előnyös elrendezés jellemzi.4 évszakos.szigeteltsége növelhető a nemesvakolat szélessége alapján.A nyílászárók a bejárati ajtó kivételével mind mozdíthatók.álassza hozzá egyedi méretű teraszunkat:130.000 Ft/m² + 27% ÁFA
| Hasznos terület - m2 | |
|---|---|
| Fürdőszobák száma - db | |
| Garázs férőhely - db | |
| Építési mód | moduláris |
| nappali-étkező-konyha | |
| szoba1 nm | |
| fürdőszoba |
Lakóházként.irodaként.nyaralóként saját célra.vagy kiadásra is remek megoldás.Rendkívül gyors kivitelezés.szállítható.vagy helyszínen is építhető.így bárki számára elérhető.








