Leírás
Tágas kényelem.kompromisszumok nélkül.A Zafír Pluszt azoknak alkottunk meg.akik egy kompakt.mégis tágas és minden igényt kielégítő.modern otthonra vágynak.A közel 50 m²-es alapterületével a Zafír Plusz ideális választás családoknak.pároknak.vagy akár egy exkluzív vendégháznak is.ahol a kényelem és a funkcionalitás az első.
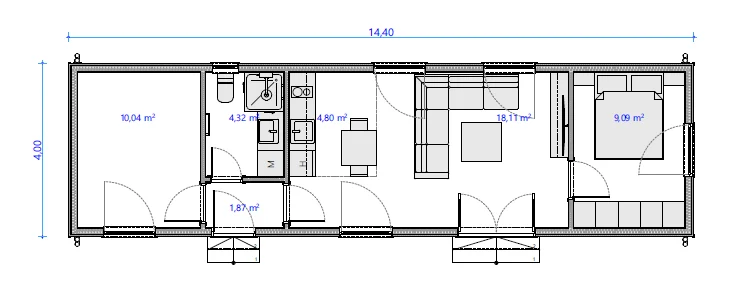
A Tér és a Stílus Harmóniája
A Zafír Plusz intelligens tervezésének köszönhetően a belső tér funkcionálisan tökéletesen tagolt.A világos.amerikai konyhás nappali a közösségi élet központja.míg a külön nyíló hálószoba a nyugodt pihenést szolgálja.A praktikus fürdőszoba és a tágas tárolóhelyiség mind a mindennapi komfortot emelik.
A Zafír Plusz legfőbb előnyei:
✔ Nagyvonalú Belső Terek: A közel 50 m²-en tágas nappali.kényelmes háló.étkezős konyha.fürdő és egy külön tároló is helyet kapott.
✔ Személyre Szabható Megjelenés: Válasszon 5 cm vagy 10 cm vastag külső szigetelést.és adja meg otthona egyedi karakterét a színezett nemesvakolat széles választékával.
✔ Négy Évszakos Komfort: Teljes értékű családi házként terveztük.amely a legszigorúbb energetikai követelményeknek is megfelel.így egész évben ideális.
✔ Gyors és Tiszta Kivitelezés: Az előregyártott technológia minimálisra csökkenti a helyszíni munkát.így Ön gyorsan és felesleges felfordulás nélkül költözhet.
✔ Egyszerű Bejelentéssel Építhető: A jogszabályi előírásoknak megfelelően.egyszerűsített eljárással valósíthatja meg otthonát.Árak és További Információk
Zafír Plusz alapár (alap műszaki tartalommal):
19.900.000 Ft + ÁFA
Fontos tudnivaló: Új építésű ingatlanként.amennyiben a telek megfelel az egyszerű bejelentés követelményeinek.az ÁFA mértéke kedvezményesen.mindössze 5%.
Opcionálisan rendelhető terasz:
Bővítse ki életterét egy hangulatos terasszal!
Ár: 130.000 Ft/m² + 27% ÁFA
*Az árak telephelyi átvételre vonatkoznak.
| Hasznos terület - m2 | |
|---|---|
| Fürdőszobák száma - db | |
| Garázs férőhely - db | |
| Építési mód | moduláris |
| nappali-étkező-konyha | |
| szoba1 nm | |
| szoba2 nm | |
| fürdőszoba | |
| háztartási helység nm | |
| előtér |
Lakóházként.irodaként.nyaralóként saját célra.vagy kiadásra is remek megoldás.Rendkívül gyors kivitelezés.szállítható.vagy helyszínen is építhető.így bárki számára elérhető.











